€
EUR
BIENS IMMOBILIERS
PROGRAMMES IMMOBILIERS
POUR LES PROMOTEURS
POUR LES INVESTISSEURS
À PROPOS
CONTACT
Mais
BIENS IMMOBILIERS
PROGRAMMES IMMOBILIERS
POUR LES PROMOTEURS
POUR LES INVESTISSEURS
À PROPOS
CONTACT
0
0
Maison dans village 4 Chambre(s) Triplex
Porto, Matosinhos
Retour
\
Maison dans village 4 Chambre(s) Triplex - Porto, Matosinhos
Partager bien
Facebook
X
Pinterest
WhatsApp
Copiar link
Link copiado
Imprimer la Feuille
Envoyer la propriété à un ami
Insérer un nom
Insérer un email
Se il vous plaît entrer une adresse email valide
Insérer un nom
Insérer un email
Se il vous plaît entrer une adresse email valide
J´ai lu et accepte les termes et conditions énoncés.
Savoir plus »
Pour terminer cette opération, vous devez lire et accepter nos conditions.
Champs obligatoires *
Envoyer
Photos
Vidéos
Plante
Seguir imóvel
Seguir imóvel
Receba um alerta quando existir uma Baixa de Preço
Nom
Entrez votre nom
E-mail
Entrez votre email
Se il vous plaît entrer une adresse email valide
Li e aceito a
Politique de confidentialité
Pour terminer cette opération, vous devez lire et accepter nos conditions.
Insérer le code de l'image
Code
Envoyer
Maison dans village 4 Chambre(s) Triplex, Porto, Matosinhos
1 250 000 €
Ref.:
RB1463
LUXUEUSE villa TRIPLEX de 4 chambres avec terrasse, jardin, piscine dans le centre de Matosinhos Sul
Nouvelle construction offrant confort et luxe pour une haute qualité de vie dans le centre de Matosinhos Sul, à seulement 15 minutes à pied de la plage de Matosinhos.
Avec une situation privilégiée pour tous les services que la ville a à offrir, tout est sur le pas de votre porte :
- Restaurants, cafés et bars à 5 minutes
- École primaire à 2 minutes
- Station de métro et de bus à 4 minutes
- Banques et magasins locaux à 4 minutes
- Marché municipal de Matosinhos 12 min
- Mercadona 14 min
Vous pourrez profiter de tous ces services et bien plus encore, à deux pas de chez vous.
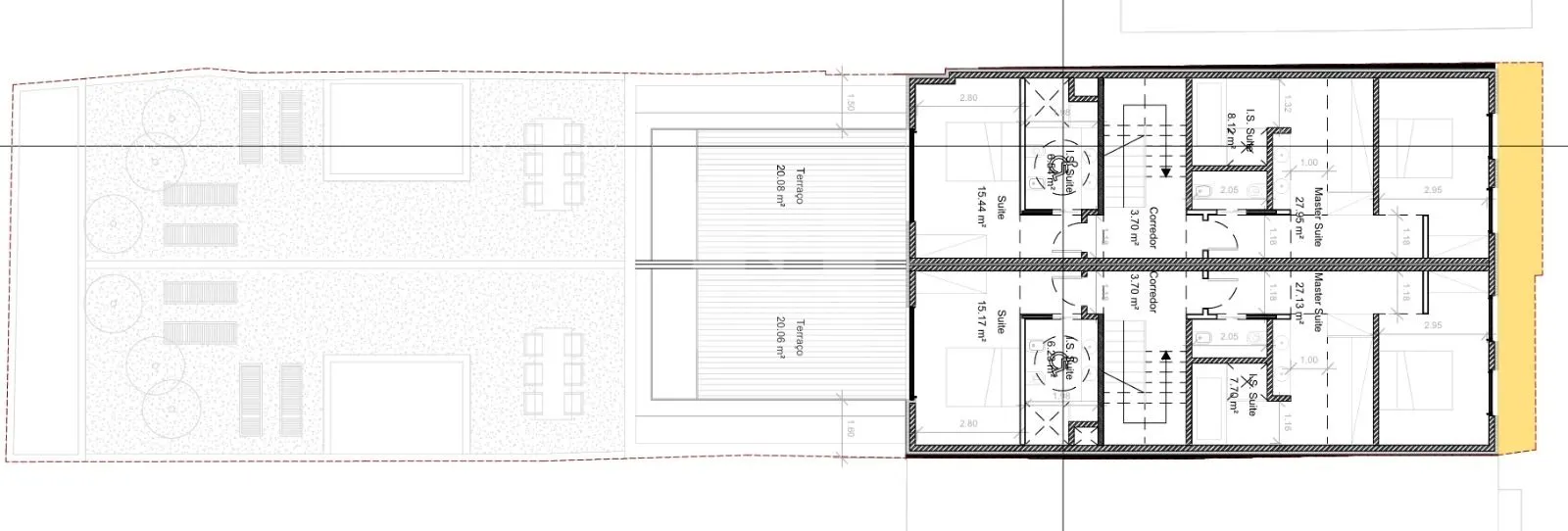
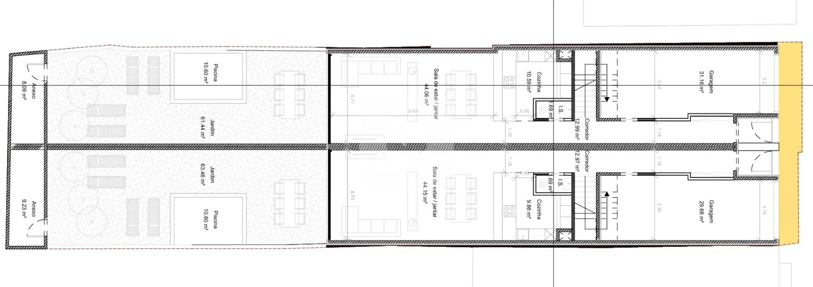
Caractéristiques de la propriété :
Type T4
Nombre d´étages au-dessus du niveau du sol 3
Nombre d´étages au-dessous du niveau du sol 0
Surface privée brute 276,50m2
Surface dépendante brute 53,63m2
Surface de la terrasse non couverte 20,08m2
Surface de la piscine 10,60m2
Surface utile 212,63m2
Informations d´intérêt :
- Cuisine entièrement équipée : Four, micro-ondes, plaque de cuisson à induction avec hotte intégrée, réfrigérateur, lave-vaisselle : tous MIELE.
- Piscine : Revêtue de carreaux de porcelaine OCEAN SAVOIA.
- Installations sanitaires VALADARES et chauffage au sol.
- Garage Box pour deux voitures.
Réservez dès maintenant votre visite avec l´un de nos conseillers immobiliers.
RÉPLICA, une référence en matière d´immobilier.
Avec 35 ans d´expérience sur le marché national, nous appliquons les meilleures pratiques et méthodologies qui favorisent le propriétaire et l´acheteur, en fournissant les meilleurs résultats pour toutes les parties impliquées.
Nous travaillons avec rigueur dans la prestation de services immobiliers, en appuyant notre activité sur l´expérience de notre équipe de professionnels et sur des solutions efficaces de publicité et de marketing.
Nous garantissons une discrétion maximale et un excellent service.
Ne vous inquiétez pas, nous nous occupons de tout.
4 Chambres
4 Salle de bain
1 Garage
212,63 m² Zone:
317,64 m² Surface brute
276,5 m² Surface brute privée
96,92 m² Surface au sol
Type de propriété
Maison dans village
Type
4 Chambres
Objectif
Vente
Etat
En Construction
Prix
1 250 000 €
Année de construction
2024
Pays
Portugal
Département
Porto
Ville
Matosinhos
Lieu
Matosinhos e Leça da Palmeira
Secteur
Matosinhos
Intéressé par cette propriété?
Date
Hora
Nom
Insérer un nom
E-mail
Insérer un email
Se il vous plaît entrer une adresse email valide
Contact
Entrez votre contact téléphonique
Message
Demander plus d´informations, sans aucun engagement sur l´immeuble RB1463
J´ai lu et accepte les termes et conditions énoncés.
Politique de confidentialité
Pour terminer cette opération, vous devez lire et accepter nos conditions.
Code
Insira o Código de Segurança
Envoyer
Simulador de Crédito
Simulador de IMT
Valeur de la propriété*
Montant du prêt*
A sua idade*
Prazo empréstimo *
Mensuel
0.00
€
La valeur de la prestation présentée n’inclut pas l’assurance vie et l’assurance habitation.
Indexage
0.000
%
TAEG
0.000
%
Spread
0.000
%
Terme
0
ans
TAN
0.000
%
Simuler
Les informations générées dans ce simulateur sont destinées à fournir des informations à caractère exclusivement indicatif à l'utilisateur, ne conférant aucune valeur contraignante ni à la collecte de données à des fins commerciales.
Localisation de la propriété*
Sélectionnez
Portugal Continental
Régions autonomes
Objectif*
Sélectionnez
Posséder un logement permanent
Logement secondaire ou location
Bâtiments rustiques
Autres
Valeur de la propriété*
Des valeurs complémentaires*
IMT
0.00
€
Droit de timbre (0,8%)
0.00
€
Des valeurs complémentaires
0.00
€
Total à payer
0.00
€
Plus d'information
Simuler
Les informations générées dans ce simulateur sont destinées à fournir des informations à caractère exclusivement indicatif à l'utilisateur, ne conférant aucune valeur contraignante ni à la collecte de données à des fins commerciales.
Dados de Intermediação de Crédito - (Intermediário de Crédito nº )
En savoir plus sur votre simulation
Nom
Champs requis
E-mail
Champs requis
E-mail inválido
Contact
Champs requis
Notes
Ceci est juste une simulation. Cette simulation de crédit est à but non lucratif.
Li e aceito a
Politique de confidentialité
Pour terminer cette opération, vous devez lire et accepter nos conditions.
Code
Insira o Código de Segurança
Envoyer
Caractéristiques générales
Général
Pièces
Pièces
Lieu
Étage
Murs
Plafonds
Notes
Environnement
Commodités
Domotique
Energies renouvelables
Biens Similaires
Exclusif
Porto, Matosinhos
980 000 €
Maison de luxe de 4 chambres avec jardin et terrasse à Senhora da Hora
980 000 €
Maison de luxe de 4 chambres avec jardin et terrasse à Senhora da Hora
Porto, Matosinhos
4
3
2
880 m²
A. Bruta
340 m²
A. Bruta Privada
290 m²
A. Útil
540 m²
A. Terreno
Contact
Porto, Matosinhos
1 250 000 €
LUXUEUSE villa TRIPLEX de 4 chambres avec terrasse, jardin, piscine dans le centre de Matosinhos Sul
1 250 000 €
LUXUEUSE villa TRIPLEX de 4 chambres avec terrasse, jardin, piscine dans le centre de Matosinhos Sul
Porto, Matosinhos
4
4
1
317,64 m²
A. Bruta
276,5 m²
A. Bruta Privada
212,63 m²
A. Útil
96,92 m²
A. Terreno
Contact
Porto, Matosinhos
770 000 €
Maison 4 Chambre(s) Triplex
770 000 €
Maison 4 Chambre(s) Triplex
Porto, Matosinhos
4
5
2
440 m²
A. Bruta Privada
440 m²
A. Útil
Contact
Plus de propriétés +
Estamos disponíveis para o ajudar
Pretendo ser contactado
Date
Hora
Nom
Insérer un nom
E-mail
Insérer un email
Se il vous plaît entrer une adresse email valide
Contact
Insira o seu Contacto
Message
Li e aceito a
Politique de confidentialité
Pour terminer cette opération, vous devez lire et accepter nos conditions.
Code
Insira o Código de Segurança
Envoyer
O que é a pesquisa responsável
Esta pesquisa permite obter resultados mais ajustados à sua disponibilidade financeira.