€
EUR
BIENS IMMOBILIERS
PROGRAMMES IMMOBILIERS
INVESTISSEURS
PROMOTEURS
À PROPOS
CONTACT
Mais
BIENS IMMOBILIERS
PROGRAMMES IMMOBILIERS
INVESTISSEURS
PROMOTEURS
À PROPOS
CONTACT
0
0
Appartement T3 aux Jardins d’Arrábida, Vila Nova de Gaia
Porto, Vila Nova de Gaia
Retour
\
Appartement T3 aux Jardins d’Arrábida, Vila Nova de Gaia - Porto, Vila Nova de Gaia
Partager bien
Facebook
X
Pinterest
WhatsApp
Copiar link
Link copiado
Imprimer la Feuille
Envoyer la propriété à un ami
Insérer un nom
Insérer un email
Se il vous plaît entrer une adresse email valide
Insérer un nom
Insérer un email
Se il vous plaît entrer une adresse email valide
J´ai lu et accepte les termes et conditions énoncés.
Savoir plus »
Pour terminer cette opération, vous devez lire et accepter nos conditions.
Champs obligatoires *
Envoyer
Photos
Plante
Seguir imóvel
Seguir imóvel
Receba um alerta quando existir uma Baixa de Preço
Nom
Entrez votre nom
E-mail
Entrez votre email
Se il vous plaît entrer une adresse email valide
Li e aceito a
Politique de confidentialité
Pour terminer cette opération, vous devez lire et accepter nos conditions.
Insérer le code de l'image
Code
Envoyer
Appartement T3 aux Jardins d’Arrábida, Vila Nova de Gaia
425 000 €
Ref.:
RZ0445
Appartement T3 aux Jardins d’Arrábida, Vila Nova de Gaia
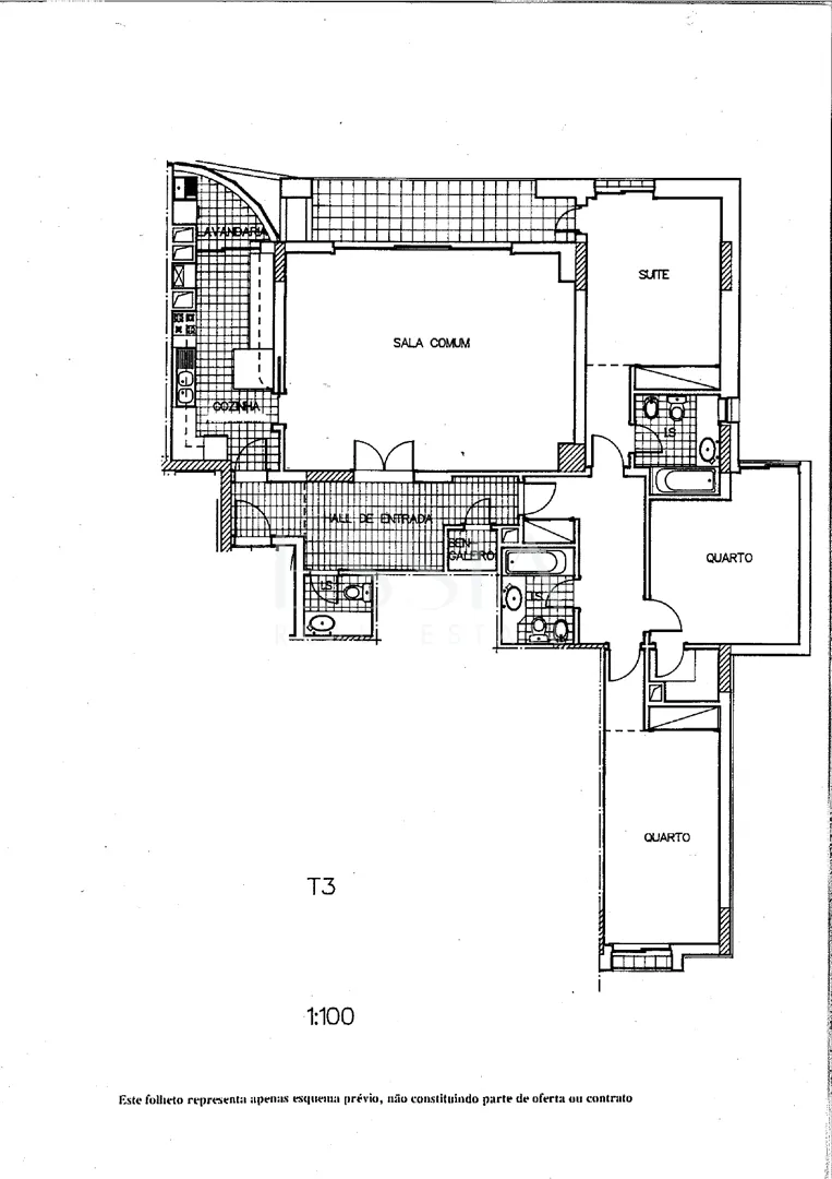
Cet appartement T3, situé dans les Jardins d’Arrábida, se distingue par ses surfaces généreuses, son excellente exposition solaire et son implantation dans une résidence de prestige. Situé au 4ᵉ étage d’un immeuble avec entrée soignée et service de conciergerie 24 h, il bénéficie de trois façades, de vues dégagées et d’une orientation est ouest. En bon état général, il conserve ses finitions d’origine, offrant ainsi une réelle opportunité de rénovation et de valorisation, que ce soit pour une résidence principale ou un investissement locatif.
Composition et caractéristiques
L’espace de vie occupe une place centrale, avec un vaste séjour doté d’une cheminée et d’un balcon longeant deux façades, garantissant une excellente luminosité naturelle. Le parquet en bois de bonne qualité, très bien conservé, apporte confort et élégance.
La partie nuit comprend trois chambres aux surfaces équilibrées, dont une suite avec salle de bains bénéficiant d’une fenêtre. Une salle de bains complète dessert les deux autres chambres, complétée par un WC invités. La cuisine, avec accès à une buanderie fermée, présente un fort potentiel pour une rénovation contemporaine.
Le bien dispose également d’une place de stationnement au niveau 0, avec accès facilité, ainsi que d’un débarras de belles dimensions sur le même étage.
Localisation et environnement
Les Jardins d’Arrábida sont reconnus pour leur qualité urbaine, leurs accès et leur proximité avec les commerces et services. Gaia Jardim et le centre commercial Arrábida Shopping se trouvent à courte distance à pied, tout comme les transports en commun.
Une liaison piétonne et cyclable vers la future station de métro d’Arrábida Shopping est prévue, améliorant la mobilité du secteur.
La résidence intègre également un établissement d’enseignement secondaire privé, renforçant son attractivité résidentielle.
Points forts
Appartement T3 avec trois façades et vues dégagées
Exposition solaire est ouest
Séjour spacieux avec cheminée et balcon
Immeuble avec conciergerie 24 h
Place de stationnement et débarras sur le même niveau
Excellent potentiel de rénovation et de valorisation
Planifiez une visite avec un conseiller ESSIA REAL ESTATE.
Forte d´une solide expérience sur le marché immobilier national, notre agence élabore des stratégies marketing rigoureuses, adaptées à chaque bien et à chaque profil client. Nous opérons avec discrétion, en assurant une analyse de marché continue et en privilégiant la valorisation du patrimoine et la sécurité de l´ensemble du processus.
Un accompagnement complet, de la conception à la réalisation.
ESSIA REAL ESTATE. Expertise reconnue. Vision contemporaine..
3 Chambres
3 Salle de bain
1 Garage
143 m² Zone:
160 m² Surface brute
143 m² Surface brute privée
Type de propriété
Appartement
Type
3 Chambres
Objectif
Vente
Etat
Ancien
Prix
425 000 €
Année de construction
1987
Pays
Portugal
Département
Porto
Ville
Vila Nova de Gaia
Lieu
Santa Marinha e São Pedro da Afurada
Secteur
N/D
Intéressé par cette propriété?
Date
Hora
Nom
Insérer un nom
E-mail
Insérer un email
Se il vous plaît entrer une adresse email valide
Contact
Entrez votre contact téléphonique
Message
Demander plus d´informations, sans aucun engagement sur l´immeuble RZ0445
J´ai lu et accepte les termes et conditions énoncés.
Politique de confidentialité
Pour terminer cette opération, vous devez lire et accepter nos conditions.
Code
Insira o Código de Segurança
Envoyer
Simulador de Crédito
Simulador de IMT
Valeur de la propriété*
Montant du prêt*
A sua idade*
Prazo empréstimo *
Mensuel
0.00
€
La valeur de la prestation présentée n’inclut pas l’assurance vie et l’assurance habitation.
Indexage
0.000
%
TAEG
0.000
%
Spread
0.000
%
Terme
0
ans
TAN
0.000
%
Simuler
Les informations générées dans ce simulateur sont destinées à fournir des informations à caractère exclusivement indicatif à l'utilisateur, ne conférant aucune valeur contraignante ni à la collecte de données à des fins commerciales.
Localisation de la propriété*
Sélectionnez
Portugal Continental
Régions autonomes
Objectif*
Sélectionnez
Posséder un logement permanent
Logement secondaire ou location
Bâtiments rustiques
Autres
Valeur de la propriété*
Des valeurs complémentaires*
IMT
0.00
€
Droit de timbre (0,8%)
0.00
€
Des valeurs complémentaires
0.00
€
Total à payer
0.00
€
Plus d'information
Simuler
Les informations générées dans ce simulateur sont destinées à fournir des informations à caractère exclusivement indicatif à l'utilisateur, ne conférant aucune valeur contraignante ni à la collecte de données à des fins commerciales.
Dados de Intermediação de Crédito - (Intermediário de Crédito nº )
En savoir plus sur votre simulation
Nom
Champs requis
E-mail
Champs requis
E-mail inválido
Contact
Champs requis
Notes
Ceci est juste une simulation. Cette simulation de crédit est à but non lucratif.
Li e aceito a
Politique de confidentialité
Pour terminer cette opération, vous devez lire et accepter nos conditions.
Code
Insira o Código de Segurança
Envoyer
Caractéristiques générales
Général
Pièces
Pièces
Lieu
Étage
Murs
Plafonds
Notes
Environnement
Commodités
Domotique
Energies renouvelables
Biens Similaires
Porto, Vila Nova de Gaia
340 000 €
Appartement 2 chambres avec balcon à Arrábida Green Avenue, Canidelo
340 000 €
Appartement 2 chambres avec balcon à Arrábida Green Avenue, Canidelo
Porto, Vila Nova de Gaia
2
2
1
95 m²
A. Bruta
77,2 m²
A. Bruta Privada
72,72 m²
A. Útil
4,48 m²
A. Terreno
Contact
Porto, Vila Nova de Gaia
260 000 €
Appartement de 1 chambre avec balcon à Canidelo, dans le complexe Arrábida Green Avenue
260 000 €
Appartement de 1 chambre avec balcon à Canidelo, dans le complexe Arrábida Green Avenue
Porto, Vila Nova de Gaia
1
1
1
59,7 m²
A. Bruta
53,87 m²
A. Útil
5,83 m²
A. Terreno
Contact
Exclusif
Porto, Vila Nova de Gaia
390 000 €
Appartement 2 Chambres dans une Résidence avec Piscine à Canidelo
390 000 €
Appartement 2 Chambres dans une Résidence avec Piscine à Canidelo
Porto, Vila Nova de Gaia
2
2
1
113,23 m²
A. Bruta
82,13 m²
A. Bruta Privada
82,13 m²
A. Útil
3 m²
A. Terreno
Contact
Plus de propriétés +
Estamos disponíveis para o ajudar
Pretendo ser contactado
Date
Hora
Nom
Insérer un nom
E-mail
Insérer un email
Se il vous plaît entrer une adresse email valide
Contact
Insira o seu Contacto
Message
Li e aceito a
Politique de confidentialité
Pour terminer cette opération, vous devez lire et accepter nos conditions.
Code
Insira o Código de Segurança
Envoyer
O que é a pesquisa responsável
Esta pesquisa permite obter resultados mais ajustados à sua disponibilidade financeira.